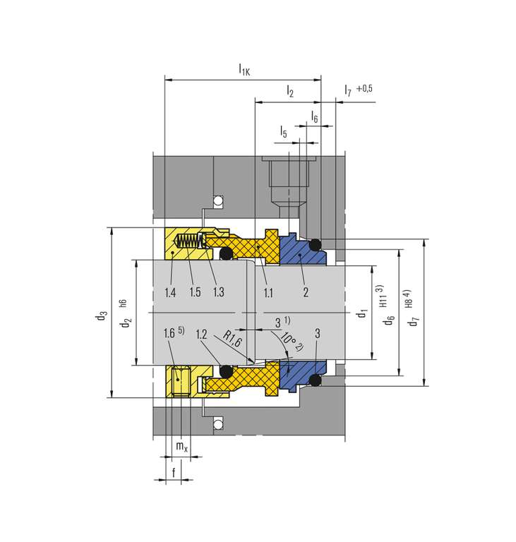
Item Parts no. to
DIN 24250
Description
1.1 472 Sliding face
1.2 412.1 O-Ring
1.3 474 Thrust ring
1.4 485 Drive collar
1.5 477 Spring
1.6 904 Set screw
2 475.1 Seat
3 412.3 O-Ring

1) d1 > 105: 2 mm x 30°
2) d1 > 105: 30°
3) d1 > 105: +0.1
4) d1 > 105: H7
5) 3 x 120°

CGSH-K

Features

  • For stepped shafts
  • Balanced
  • Rotating spring
  • Single or double seal available
  • Standard version with U-grooves, V-grooves optional (dependent of direction of rotation)
  • Gas-lubricated
  • Does not open in the event of buffer pressure failure, self closing at pressure reversal

Advantages

  • Contact-free operation, no friction
  • No differential pressure required with hard/soft material combination
  • Applicable as containment seal acc. to API 682

Operating range

Shaft diameter:
d1 = 28 ... 125 mm (1.10" ... 4.92")
Pressure: p1 = 25 bar (363 PSI)
Temperature:
t* = -20 °C ... +170 °C (-4 °F ... +338 °F)
Sliding velocity:
vg = 4 ... 25 m/s (13 ... 82 ft/s)

* Depending on resistance of O-Rings

Materials

Seal face: Carbon graphite antimony impregnated (A), Silicon carbide (Q2),
alternatively: Carbon graphite resin impregnated (B), Silicon carbide (Q1)
Seat: Silicon carbide (Q1, Q2),
Silicon carbide (Q19, Q29) with seal face in Q1 resp. Q2
Metal parts: CrNiMo steel (G)

Standards and approvals

  • EN 12756
  • API 682 / ISO 21049
  • Compliant to TA Luft (German Clean Air Act)



Product variants

CGSH-KD
Double seal back-to-back, buffered with gas, according to API 682 configuration 3NC-BB, Plan 74. Items, descriptions and unspecified dimensions as for CGSH-K.
Pressure: p1 = ... 22 bar (319 PSI), p3 = ... 25 bar (363 PSI)
(over the whole nominal diameter range, higher values on request).
Differential pressure Δp = min. 3 bar (44 PSI)
Other operating limits as CGSH-K.
CGSH Tandem arrangement
acc. to API 682 3rd Edition.
Configuration: 2CW-CS, API Plan 72, API Plan 75, API Plan 76.
For media with a gaseous leakage. H75VN on the product side. In case of a failure, the CGSH on the atmosphere side works as a liquid seal.

Similar products

EM300

  • Balanced
  • Independent of direction of rotation
  • Stationary multiple springs
  • API682 arrangement 2 containment seal

GSO-DN

  • Seat rotating
  • Stationary springs
  • Double seal
  • Balanced
  • Standard version with V-grooves, U-grooves optional (independent of direction of rotation)
  • Gas-lubricated

HRGS-D

  • Double seal
  • Balanced
  • Standard version with U-grooves (bi-directional)
  • Gas-lubricated
Contact

Inquire about individual solutions

We develop and produce customer-specific special and individual solutions for every application.

Inquire now Discover reference projects
Back to the overview